Southport, NC
Risley by Joy Construction Company
• Amazing master bath with clawfoot tub & glass shower
• In-home gym above the garage
• Second floor gathering room with viewing deck overlooking the pool
• 1,800 sq ft of attic storage
• Stunning kitchen with high end appliances & brick backsplash
• Large walk-in pantry with hidden entry
• Family room with all brick fireplace, reclaimed wood beams, & mantel
• 24 foot by 36 foot pool with hot tub & multi-level landscaping
Risley by Joy Construction Company
Custom Home/Not For Sale
St. James Plantation
2835 Pine Forest Dr
Southport, NC
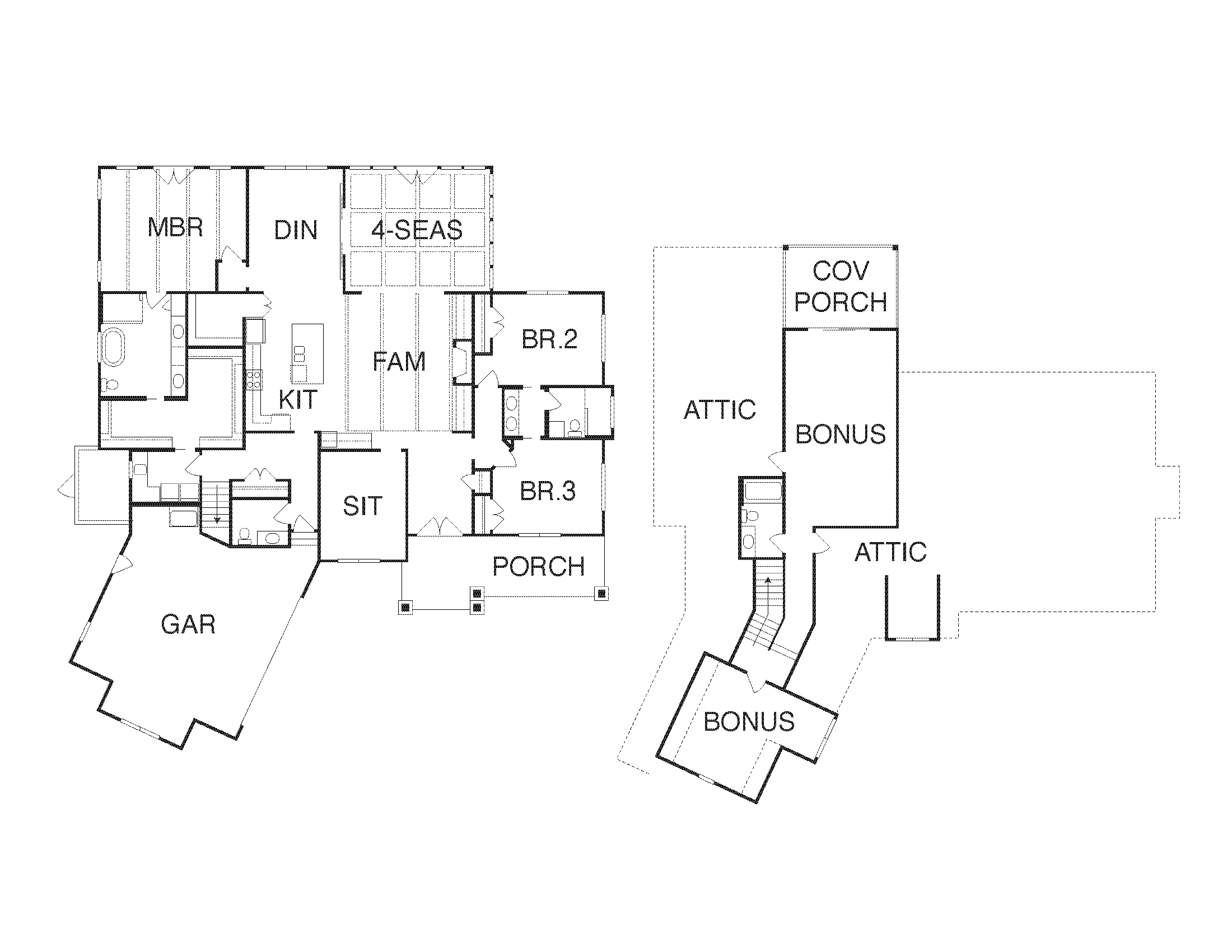
3
Bedrooms
3.5
Bathrooms
3610
Sq Feet
2.5
Car Garage
Open to Public
Floor Plans
Produced by Vivid Digital Media
More New Construction Homes
Open to Public
3D Tour
Carolina Shores Cottage by Gung Ho Construction
Carolina Shores
5 Mashie Court
Carolina Shores, NC
4
Bedrooms
3.5
Bathrooms
Open to Public
Rebecca by Douglas Builders
Ocean Ridge Plantation
6481 Kirkwall Point
Ocean Isle Beach, NC
3
Bedrooms
3.5
Bathrooms
Open to Public
3
Bedrooms
3.5
Bathrooms
Open to Public
3D Tour
Jonesport Bluffs by Kent Homes
The Bluffs on the Cape Fear
3839 River Park Way NE
Leland, NC
3
Bedrooms
3.5
Bathrooms




























