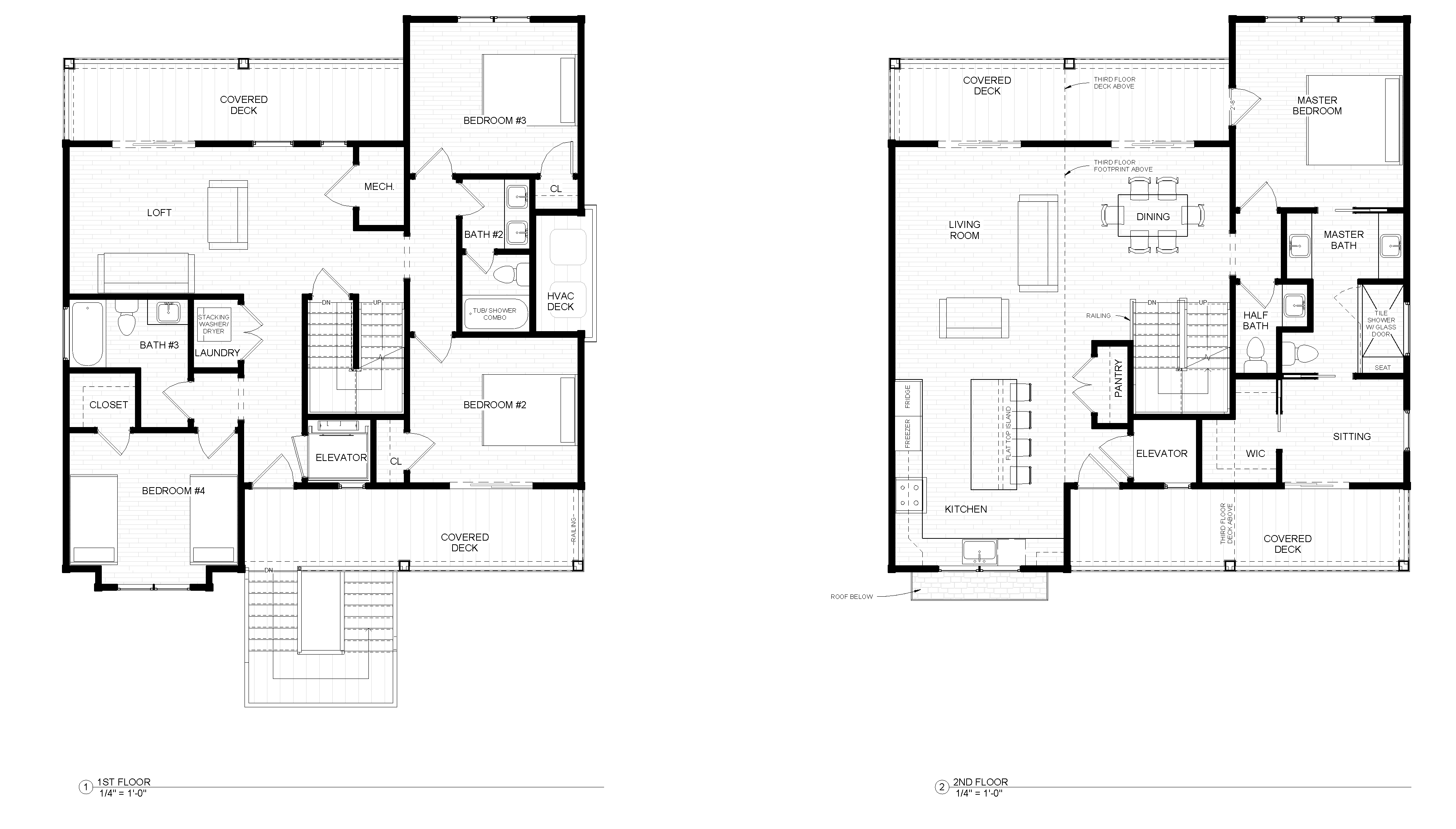
Holden Beach, NC
On Turtle Time by Coastal Carolina Construction
• Third floor lookout doubles as optional bedroom space
• Ocean & Intercoastal Waterway views
• Custom built-ins in the loft & living space
• Sitting/flex room off the master
• Custom-built bunk beds
• Rustic farm meets beach vibe
On Turtle Time by Coastal Carolina Construction
Custom Home/Not For Sale
616 Ocean Blvd West
Holden Beach, NC
5
Bedrooms
3.5
Bathrooms
2477
Sq Feet
Car Garage
Open to Public
Floor Plans
Produced by Vivid Digital Media
More New Construction Homes
Open to Public
3D Tour
St. Lucia by Kingfish Bay Development, LLC
Kingfish Bay Development
1976 Indigo Cove Way
Calabash, NC
3
Bedrooms
2.5
Bathrooms
Open to Public
3D Tour
Promenade III by Carrell Group
Courtyards by Carrell
1040 Northbridge Court NW
Ocean Isle Beach, NC
3
Bedrooms
3.5
Bathrooms
Open to Public
3D Tour
3
Bedrooms
4
Bathrooms
Open to Public
3D Tour
Dogwood by Kirk Pigford Homes, LLC
Thistle Downs Golf Club
7622 Kilbirnie Dr
Sunset Beach, NC
4
Bedrooms
3.5
Bathrooms




























